Биокамин.рф
Гипермаркет каминов
г. Сургут
Ежедневно 10.00-20.00
г. Сургут, п. Восточный промрайон, ул. Сосновая, 12 стр. 5


8 (800) 100-10-78 Обратный звонок
18 Апр 2022
г. Пенза

Проект №971. Биокамин Firezo

18 Апр 2022
г. Пенза

Поступил заказ от Андрея из города Пенза. Требовалось изготовить биокамин по индивидуальным размерам. Клиенту принципиально было важно приобрести камин с живым огнем и с возможностью размещения в квартире. Поэтому он обратился к нам.


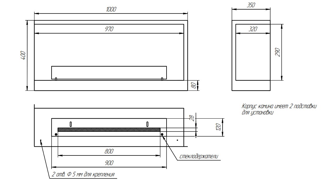
Биокамин Firezo в комплект входит защитное стекло и стемалит. Встраиваемый биокамин имеет компактные размеры и легко устанавливается в специально отведенную нишу. Материалом изготовления камина служит нержавеющая сталь, которая не перегревается при эксплуатации. В качестве топлива рекомендуется использовать биоэтанол, который заправляется в специальный контейнер и создает приятное пламя.

Заказ изготовили в течение 10 дней и установили у нашей клиента Андрея.

Создавайте уют в своем доме вместе с нашими биокаминами. По всем вопросам обращайтесь по телефону 8 (800) 444-12-19.

Также если вы хотите себе такой же биокамин или персонально созданный под ваш интерьер, то оставляйте заявку на сайте или свяжитесь с нами по WhatsApp

Характеристики

  • Бренд
    Firezo
  • Страна производства
    Россия
  • Гарантия, лет
    10

Поделиться статьей:

Видеообзоры наших каминов

Видеообзор Биокамина Kratki GOLF

Видеообзор Биокамина Kratki BRAVO

Смотреть все

Смотрите так же

Online-показ

Для всех регионов РФ

Приглашаем вас на онлайн-показ самых современных и востребованных каминов! Вы сможете не только оценить внешние преимущества понравившейся модели не выходя из дома, но и самостоятельно сравнить разные варианты и проконсультироваться со специалистом. Ждем вас в гости!
Проведем видео показ удобным
для вас способом
call [#192] Created with Sketch. Позвонить
WhatsApp