Биокамин.рф
Гипермаркет каминов
г. Сургут
Ежедневно 10.00-20.00
г. Сургут, п. Восточный промрайон, ул. Сосновая, 12 стр. 5


8 (800) 100-10-78 Обратный звонок
  • Наши проекты
  • Проект № 223. Встраиваемый биокамин в квартиру-студию Реализованные проекты1
02 Апр 2019
Воронеж, Виктор

Проект № 223. Встраиваемый биокамин в квартиру-студию

02 Апр 2019
Воронеж, Виктор
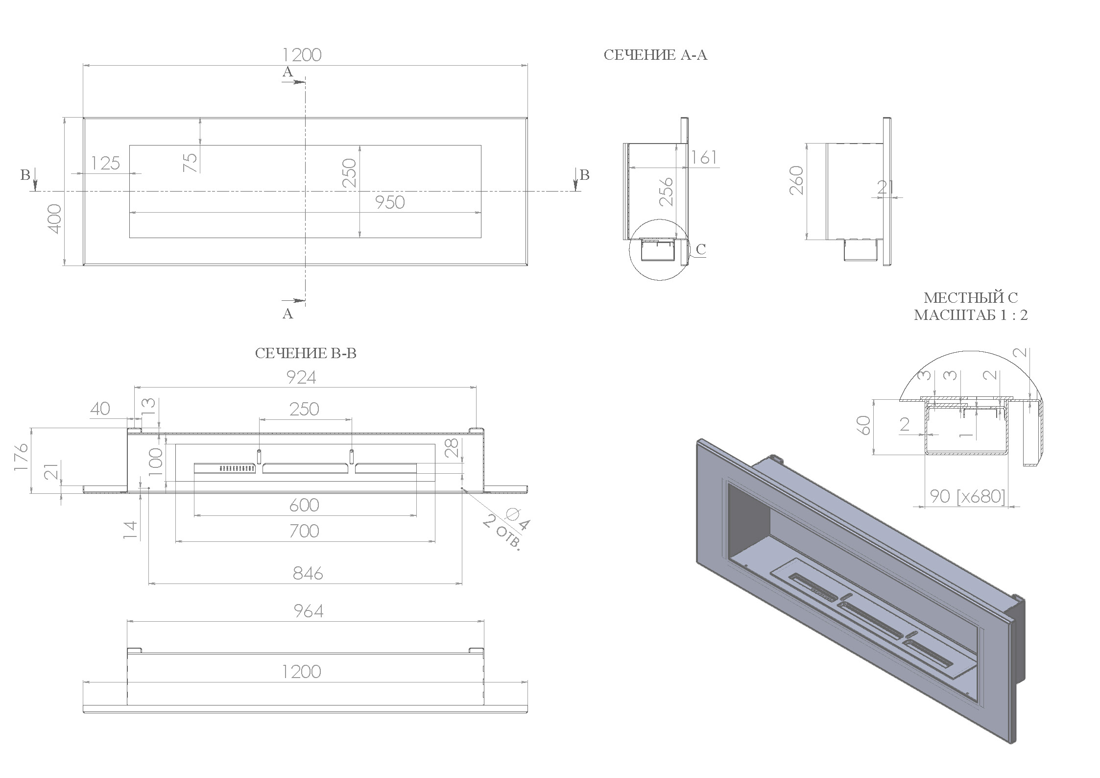
По проекту дизайнера спроектировали и изготовили встраиваемый биокамин. Исполнение классическая широкая объемная рамка, окраска черный Муар.

Характеристики

  • Ширина, мм
    1200
  • Высота, мм
    400
  • Глубина, мм
    176
  • Материал корпуса
    сталь
  • Линия огня, мм
    600

Поделиться статьей:

Товары из кейса

Видеообзоры наших каминов

Видеообзор Биокамина Kratki GOLF

Видеообзор Биокамина Kratki BRAVO

Смотреть все

Смотрите так же

Online-показ

Для всех регионов РФ

Приглашаем вас на онлайн-показ самых современных и востребованных каминов! Вы сможете не только оценить внешние преимущества понравившейся модели не выходя из дома, но и самостоятельно сравнить разные варианты и проконсультироваться со специалистом. Ждем вас в гости!
Проведем видео показ удобным
для вас способом
call [#192] Created with Sketch. Позвонить
WhatsApp